【3dsmax初心者向け】スウィープ機能でモデリング
2018/04/27
こんにちは。デジダスキュビカの文元です。
今回の内容は3dsmaxのモデリングで使用するスウィープ機能についてです。
スウィープ機能は建築のモデリングでほぼ間違いなく使用しています。
スウィープとはスプライン(線)から形を作る機能です。
この機能でよく窓枠や縁石を作ります。
3dsmaxスウィープ機能の具体的な使い方
さて、まずは簡単な窓枠を作ってみましょう。
①W900×H1800の長方形を作成します。
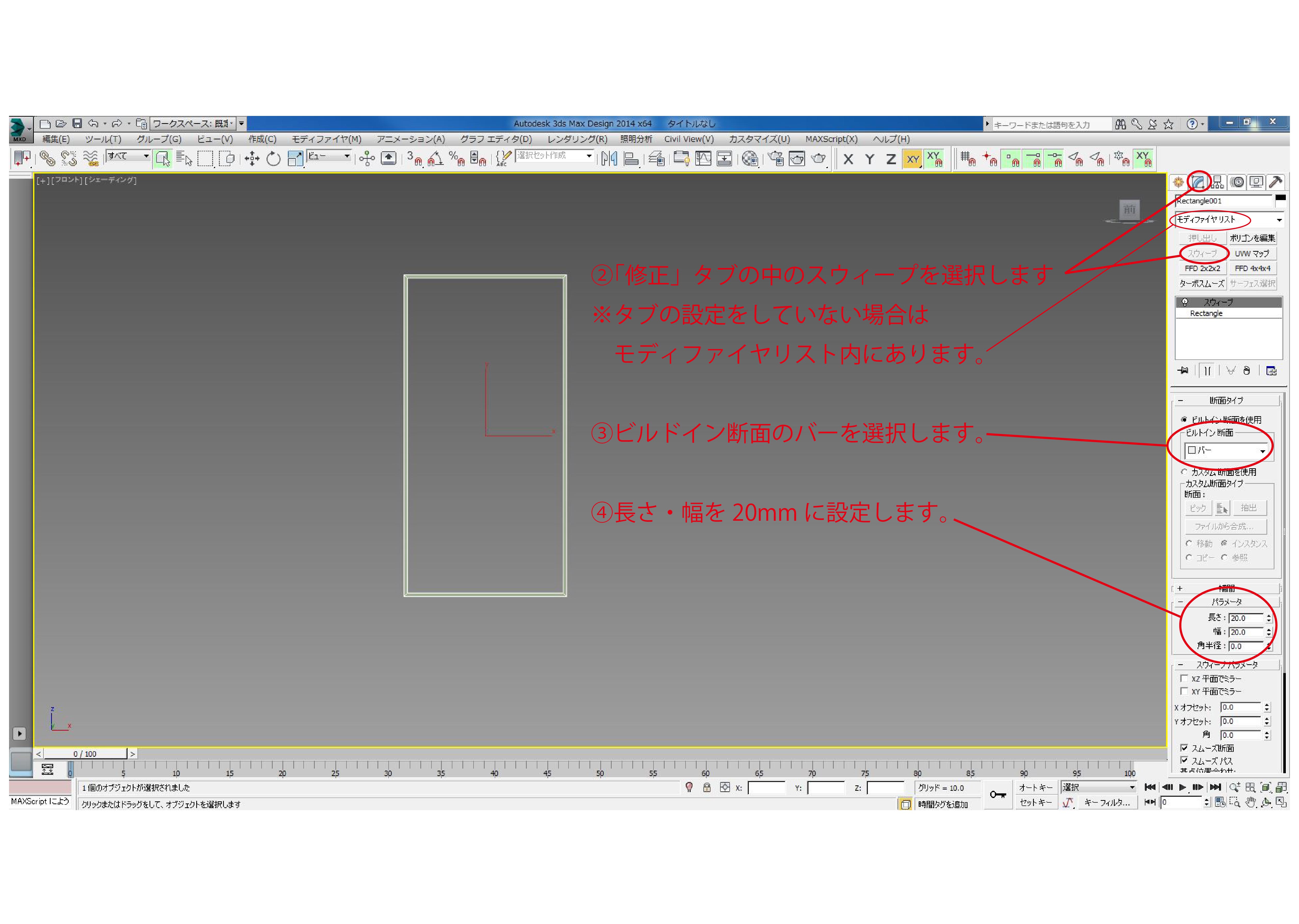
②「修正」タブの中のスウィープを選択します
③ビルドイン断面のバーを選択します。
④長さ・幅を20mmに設定します。
上記の作業を行うと①のラインに沿って20mm角のバーが作成されます。



⑤作成したモデルを下画像のように複製します。
簡単な複製方法はshift+移動です。

複製につきましては【3dsmax初心者向け】モデルの複製方法にて
掲載させて頂いておりますのでよろしければご参照下さい。
⑥複製した2つのモデルの外枠を長方形でラインを引きます。
⑦スウィープ・バーを選択・長さ60、幅30で作成します。


⑧下画像の基点位置合わせのパネルで位置を調整します

これで簡単な窓枠の完成です。
窓をひとつ作れば1セット複製し大きさを変更していけば、全て1から作るより早いです。
ビルドイン断面をうまく使う
その他にも様々なビルドイン断面の形があるので、色んなモデリングに使用できます。
「ワイドフランジ」はH鋼を作成する際に便利です。
「山形」はL型の縁石を作る際に使用します。
「みぞ型」はU字側溝を作成する際に便利です。

スウィープ前にラインの作成方法を工夫する
またラインの作成の仕方を工夫することですばやくモデリングを行うことができます。
例えば外壁やパネルの目地を作成する際によく行う方法は以下の通りです。
①「作成」→「平面」面を作成し長さ、幅、セグメントの数値を調整して
作りたい目地の平面を作成します。
②平面に編集からポリゴン編集をかけてエッジを全選択しシェイプを作成をクリックします。
③作成されたシェイプのエッジを全選択して右クリックし、コーナーを選択する


④ラインが長方形になればスウィープのバーを作成し任意の大きさにして目地を作る。

ラインを1から引くよりもポリゴン編集のシェイプ作成からできたラインを使うほうが
簡単で早い場合があるので使ってみてください。
何かお役に立ちましたら幸いです。
最後までお読み頂きありがとうございます。
CGパースクリエイター 文元

